Evangelisch-Lutherisches Gemeindezentrum Kösching
Diezinger Architekten GmbH
Aus dem Boden in die Höhe
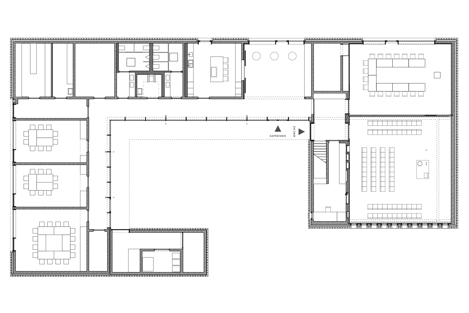
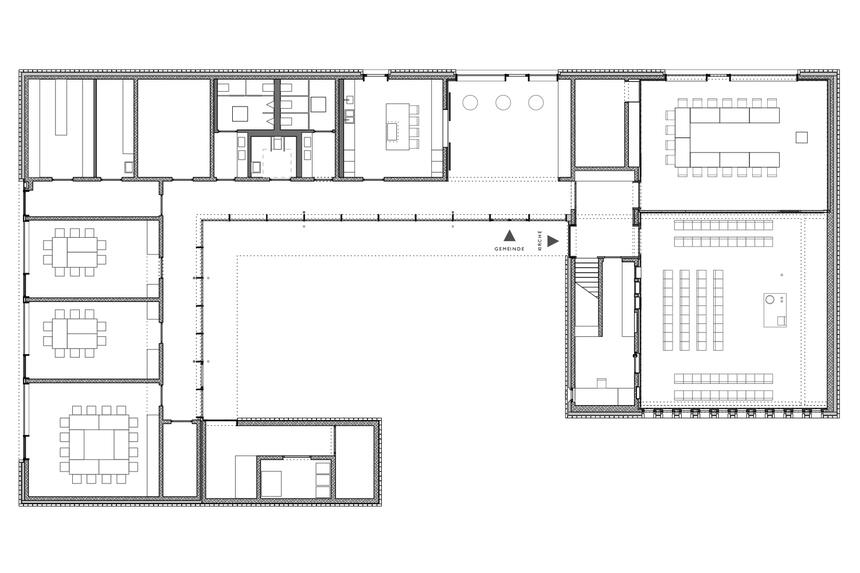
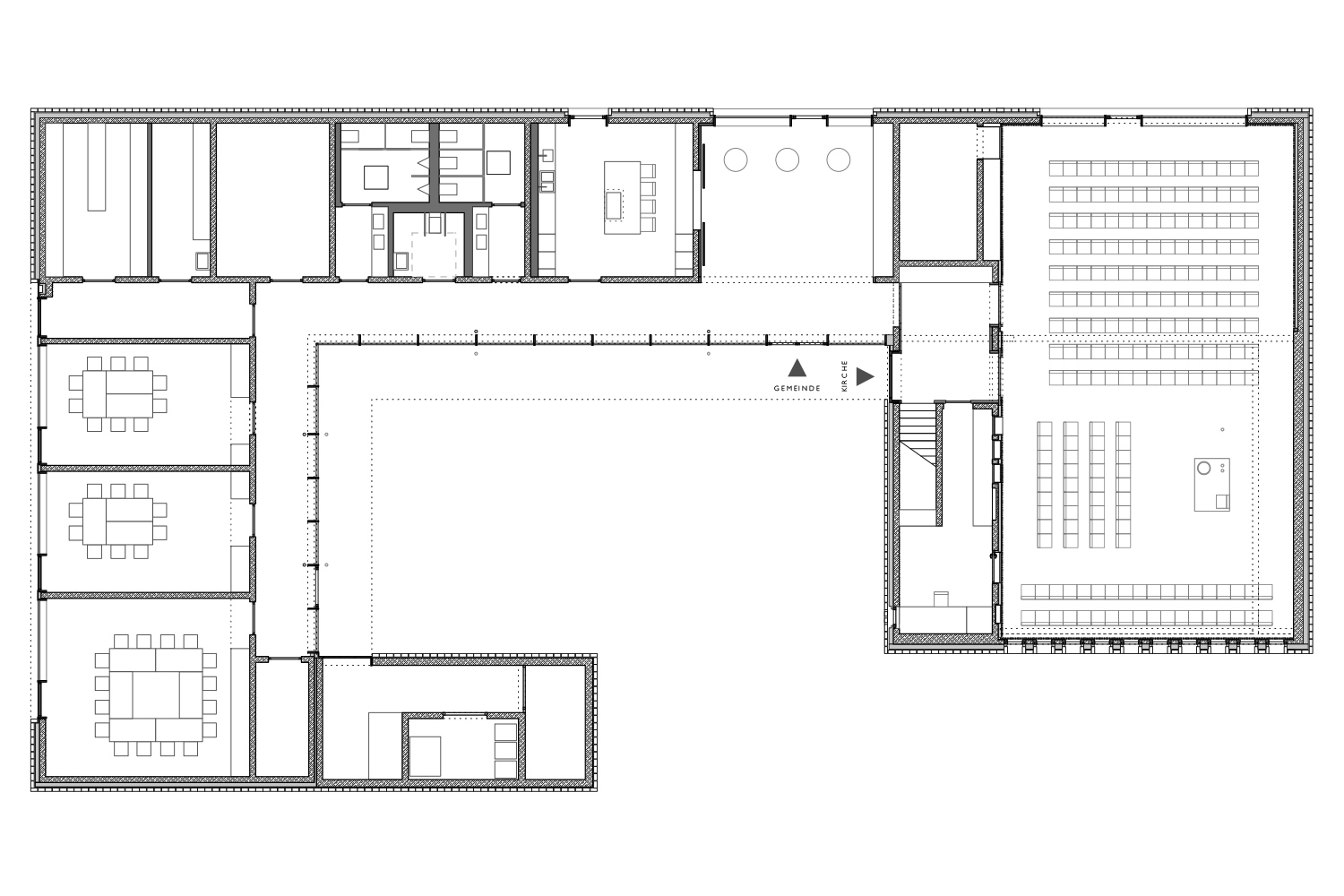
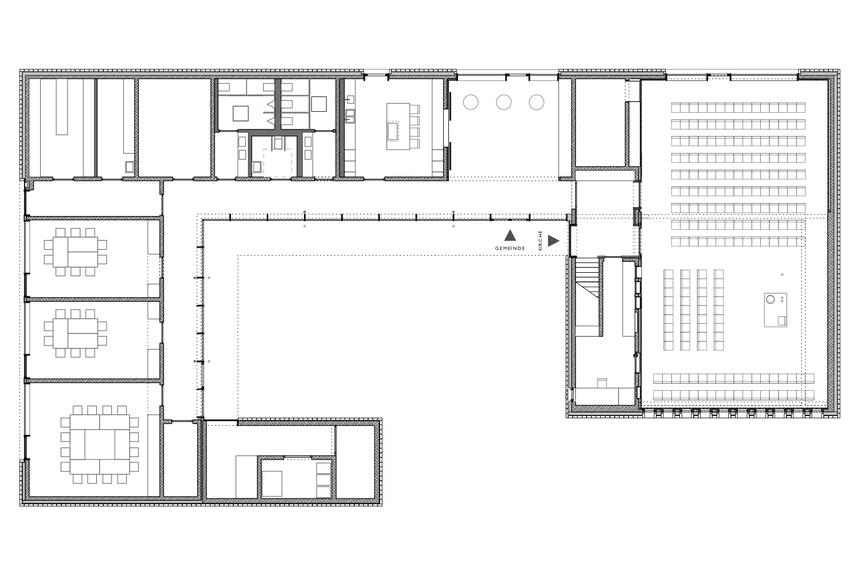
Das Dietrich-Bonhoeffer-Gemeindezentrum definiert mit kompakter, plastisch ausgebildeter Hoftypologie einen neuen signifikanten Ort auf einer kleinen Anhöhe am nordwestlichen Ortsrand von Kösching. Kirche, Gemeindezentrum und Glockenturm gruppieren sich um einen zentralen Innenhof der sich nach Süden öffnet.

Die differenzierte Höhenstaffelung des Gebäudes gliedert den Gebäudekubus und lässt seine Inhalte ablesen. Der Baukörper bildet aus Kirchenraum und Gemeindehaus und dem weithin sichtbaren Glockenturm eine kompositorische Einheit. Der Zugang zur Anlage wird von Kirche und Glockenturm flankiert und steht mit einer deutlich sichtbaren Öffnung im Dialog mit dem öffentlichen Raum. Der Neubau wird von einer einheitlichen Materialität aus Ziegelsichtmauerwerk geprägt.
Es wurde ein unregelmäßiger Wasserstrich-Klinker ausgewählt, der in seiner fein differenzierten Farbgebung harmonisch die erdigen Farbtöne der umliegenden Äcker aufnimmt. Als sichtbares christliches Zeichen wurde im Glockenturm ein Relief aus Backstein in Form eines Kreuzes eingearbeitet. Die Fassaden des Innenhofes sind auf zwei Seiten geschosshoch verglast und erweitern den Innenhof optisch bis tief ins Innere des Gebäudes. Das geistliche Zentrum bildet der zweigeschossige Kirchenraum, der im Westen durch eine Empore ergänzt und im Osten von einer natürlich beleuchteten Lichtwand begrenzt wird. Die nur durch ein Oberlichtband beleuchtete Altarrückwand erzeugt eine stimmungsvolle, kontemplative, Raumstimmung. Zusätzliches diffuses Licht erhält der Kirchenraum aus seitlichen Fenstern hinter einem Lamellenvorhang aus Holzprofilen. Eine vollständig öffenbare Schiebewand ermöglicht den Zusammenschluss des Gemeindesaals mit dem Kirchenraum. Die Prinizipalien sind im Altarblock vereint und symbolisieren die Sakramente. Für den Kirchenraum wurde von Olafur Eliasson das Kunstwerk „Der Lauf der Sonne“ mit insgesamt zwölf Ellipsen aus „schwebenden“ Messingprofilen geschaffen.
Diezinger Architekten