Kunstcampus Deichtorhallen: Ein Bundesinstitut für Fotografie in Hamburg

Alexander Böttcher und Emilia Kuhlendahl

Kunstcampus Deichtorhallen - Ein Bundesinstitut für Fotografie in Hamburg

Das gebaute Visuelle Gedächtnis

Die Idee für ein Bundesinstitut für Fotografie entstand aus der Bedeutung der deutschen Fotografie in der Geschichte des Mediums. Die Vielfalt an Fotografiesammlungen und die Vernachlässigung des nationalen Erbes stellen uns vor die Herausforderung, das visuelle Gedächtnis zu bewahren, und hierfür einen angemessenen Ort und gleichzeitig Ausdruck in einer deutschen Stadt zu schaffen.

Der gewählte Standort für das Bundesinstitut befindet sich in Hamburg auf dem Areal der Deichtorhallen, wo bereits die Kunstmeile verläuft. Insbesondere das benachbarte Haus der Fotografie bietet mögliche Synergien mit dem Bundesinstitut. Dieses wird das bestehende Ensemble aus Deichtorhallen und Haus der Fotografie um einen dritten Baukörper ergänzen. Trotz unterschiedlicher Architekturen aus unterschiedlichen Zeiten harmonieren die Gebäude durch ihre städtebauliche Setzung, der Schaffung von gemeinsamen Freiräumen und Gestaltung mit Backstein als prägendes Baumaterial.

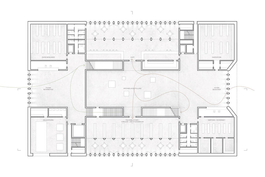
Der Entwurf des Bundesinstituts für Fotografie basiert auf dem Konflikt zwischen öffentlicher Zugänglichkeit und strikter Kontrolle zur Bewahrung der Archivalien. Um diesen Konflikt zu lösen, wurde ein Konzept zweier gegenläufiger Erschließungen entwickelt, bei dem Besucher und Mitarbeiter getrennte Wege durch das Gebäude nehmen, die starke Bezüge zueinander haben. Die Erschließungen sind um den zentralen Raum angeordnet, welcher die vielseitigen Nutzungen des Instituts miteinander verbindet und einen Treffpunkt aller Akteure schafft. Die Besucher betreten das Gebäude durch den Haupteingang am zentralen Platz und durchlaufen den Rundgang, der sie zu Erfahrungsräumen wie der Fachbibliothek, Kabinettausstellung und dem Veranstaltungssaal führt. Die Mitarbeiter hingegen beginnen ihren Rundgang im Archiv in den Untergeschossen und durchlaufen Bereiche der Digitalisierung und Restaurierung wie Fotostudios, Ateliers und Workshopräume. Ergänzt werden die Nutzungen durch die Verwaltung, Direktion und Forschung.

Die Materialität des Entwurfs zeigt starke Bezüge zum Backsteinexpressionismus des benachbarten Kontorhausviertels und zu den Deichtorhallen auf: Der monolithische und verzahnte Wandaufbau aus dänischem Flachziegel und Hochlochziegel ermöglicht, dass der Ziegel sowohl nach innen als auch außen sichtbar ist, sich die Formsprache aus dem Ziegelformat ableitet, und so die Atmosphäre maßgebend geprägt wird. Zusätzlich zum Ziegel und Stahl wird für die horizontalen Bauteile wie Dach, Unterzüge und Decken rötlich gefärbter Beton verwendet. Für eine hohe Energieeffizienz wird auf einen kompakten Baukörper und eine luftdichte Gebäudehülle mit geringem U-Wert gesetzt. Die großen, unverkleideten Speichermassen des Gebäudes reduzieren den Energiebedarf. Eine automatische Steuerung der Haustechnik ermöglicht eine bedarfsabhängige Regelung der Energieversorgung. Durch die Verwendung von langlebigen und robusten Materialien wird der Nachhaltigkeit Rechnung getragen. 

Alexander Böttcher und Emilia Kuhlendahl

City
Hamburg, Deutschland
Architect
Alexander Böttcher und Emilia Kuhlendahl
Plot size
10.858 m²
Built-up area
2.517 m²
Usable area
10.705 m²
Enclosed volume
80.544 m³
Construction time
2022 – 2023