Ejler Bille Parking House

JAJA Architects

Ejler Bille Parking House

PATCHWORK IN BEWEGUNG

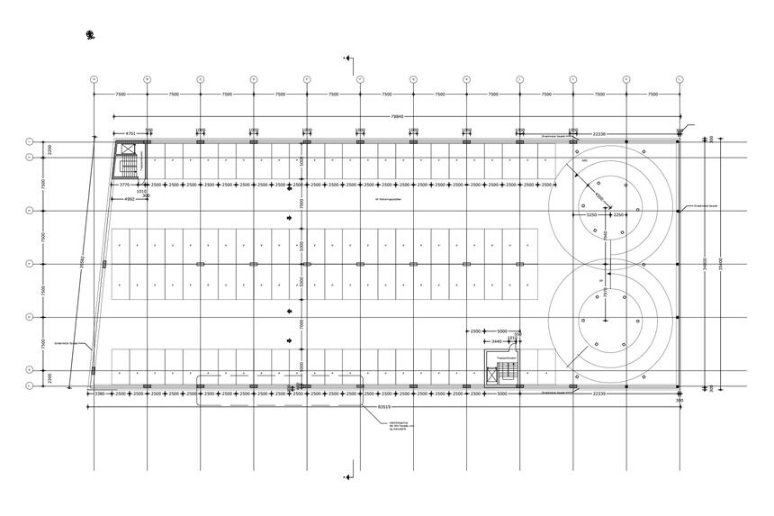
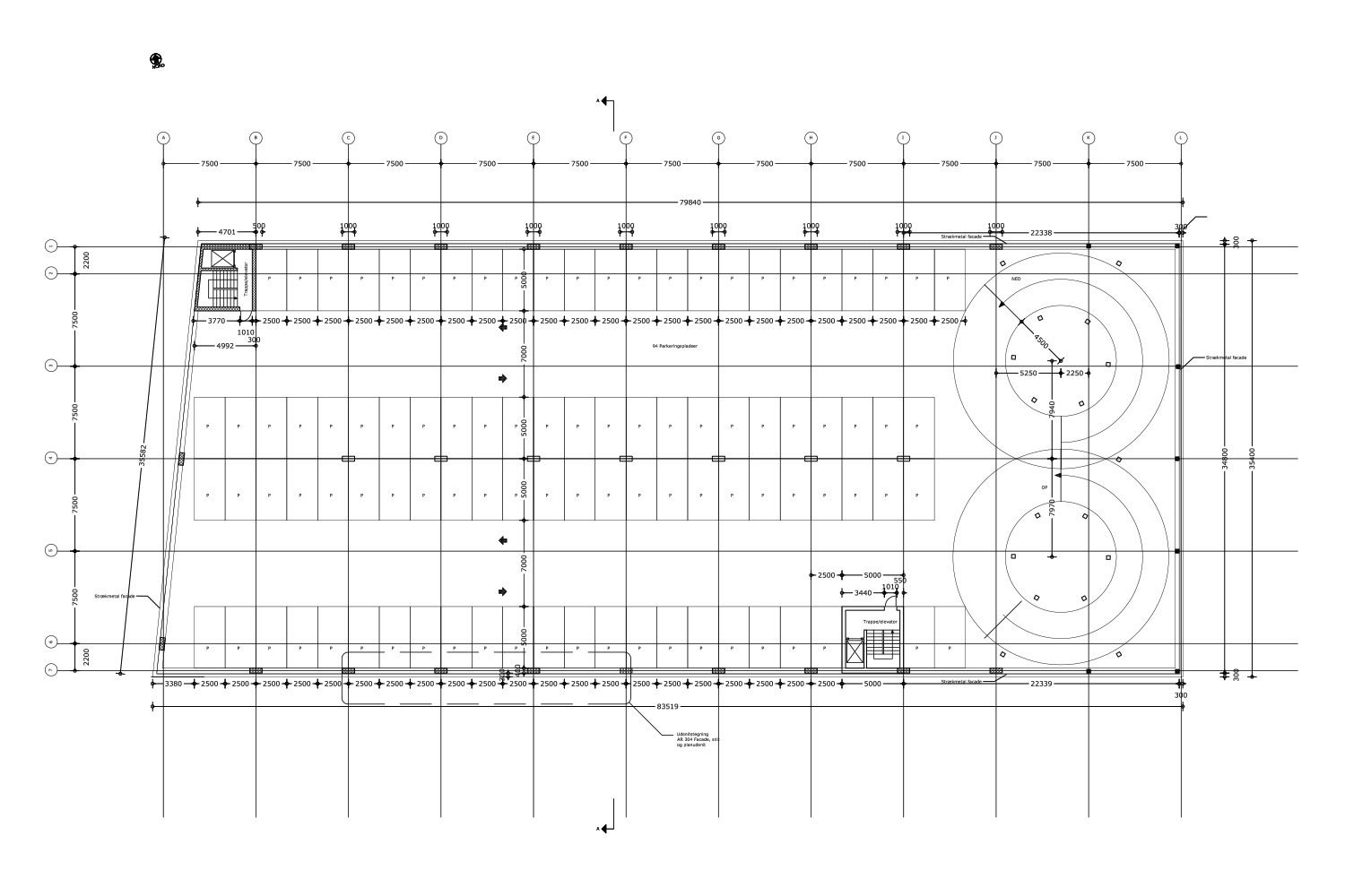
Auch Profanbauten ohne repräsentative Ansprüche müssen nicht rein funktional sein: Sie können städtische Räume lebendig machen und Orte der zufälligen Begegnung schaffen. Die perforierte Fassade des Ejler Bille Parkhauses in einem Patchwork aus handgeformtem Backstein und Metall führt zu einem Spiel von Licht und Schatten, das sich über den Tag und die Jahreszeiten hinweg verändert. 

Von oben nach unten wird das Muster kleinteiliger, sodass Passanten von jeder Entfernung einen anderen ästhetischen Eindruck gewinnen. Dort, wo die Fassade auf die Straße trifft, bildet sie Sitzmöglichkeiten. Gleichzeitig können Pflanzen an den Flächen hochranken, sodass das sich Gebäude als Teil des Stadtlebens verändert, mitwächst und zum Verweilen einlädt.

Ort
Kopenhagen, Dänemark
Architektenprofil
Grundstückfläche
17.000 m²
Bebaute Fläche
2.758 m²
Nutzungsfläche
19.200 m²
Bauzeit
2016 – 2018
Baukosten
15,4 Mio. €