Sporthalle Coppi-Gymnasium Berlin

Schulz und Schulz Architekten GmbH

 Sporthalle Coppi-Gymnasium Berlin

SPORTLICHER DREIKLANG

Die Identität der Sporthalle ist in ihrer Fassade ablesbar: Farbe und Materialität signalisieren Zugehörigkeit zum Bestandsbau, die drei Bogenfenster spiegeln die innere Gliederung in drei Hallenteile wider.

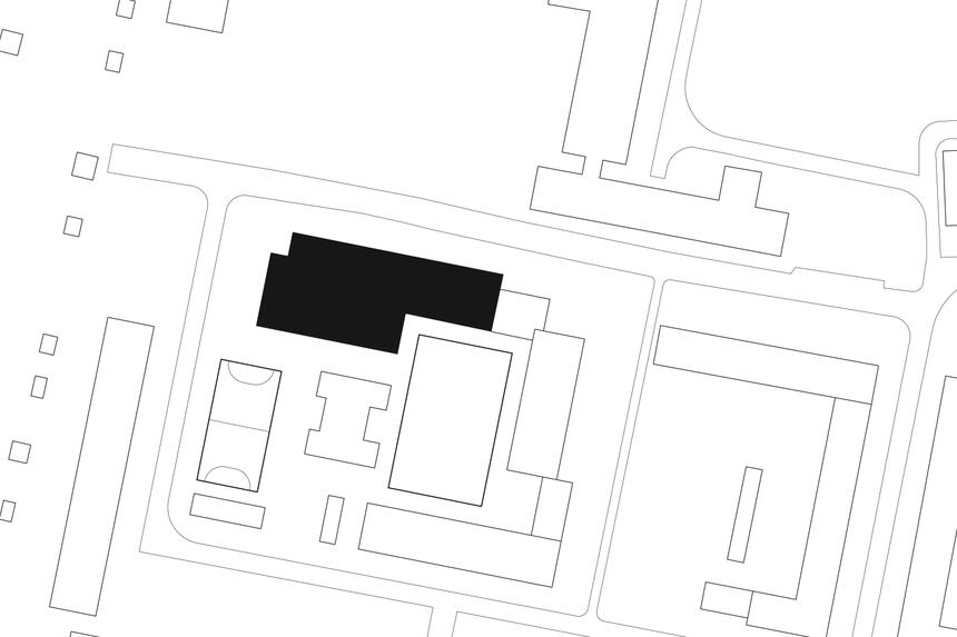
Die Dreifeld-Sporthalle ersetzt die durch eine Brandstiftung zerstörte historische Sporthalle aus den 1930er-Jahren. Der Neubau fügt sich in die übergeordnete Struktur des Hans-undHilde-Coppi-Gymnasiums ein und schafft durch eine eigenständige Architektur neue Qualitäten, ohne die denkmalpflegerischen Belange zu vernachlässigen. Durch die Verschneidung von Sporthalle und Nebenraumtrakt wird das Prinzip der Negativecken in der Blockstruktur aufgenommen, während im Inneren ein gefasster, großzügiger Außenraum für die Pause entsteht. 

Durch das Versetzen der beiden Volumen Sporthalle und Nebenraumtrakt wird es möglich, in angemessener Maßstäblichkeit an den bestehenden Gebäudekomplex anzuschließen und die ursprünglich großzügige Ausbildung des Innenhofbereichs beizubehalten. Durch den Höhenversatz wird eine klare Fuge zwischen Neubau und Bestand generiert, die sich auch in funktionaler Weise vom restlichen Gebäude unterscheidet. 

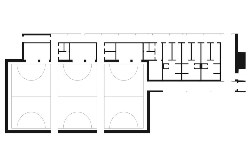
Die klare Gliederung in zwei Baukörper wird in der Funktionsverteilung fortgeführt. So nimmt der niedrigere Gebäudeteil alle Nebenfunktionen wie Umkleide, Wasch- und Geräteräume sowie die gesamte Erschließungsstruktur auf. Durch die Verschiebung von Sporthalle und Nebenraumtrakt kann an den Bestand angeschlossen werden und so ein in seiner Größe angemessenes zentrales Foyer entstehen, das den Pausenhof und den Straßenraum miteinander verbindet. An das Foyer schließen die Umkleiden und Waschräume an, die in ihrer Anordnung eine Orientierung zu den einzelnen Hallenteilen gewährleisten. Umkleideräume und Hallenteile werden über einen zentralen Erschließungsflur verbunden. Über die schulische Nutzung hinaus ist die Sporthalle auch auf den Vereins- und Breitensport ausgerichtet. Dem intensiven Nutzungsbedarf steht ein begrenztes Baufeld gegenüber. Vor diesem Hintergrund wird die Zweifachhalle in einer Sonderform mit drei Hallenteilen ausgeführt. 

Der Neubau ist als Stahlbetonkonstruktion mit Flachdecken und tragenden Wänden konzipiert. Die bauliche Entsprechung de–niert ein dreiteiliges, sichtbares, tonnenförmiges Dachtragwerk, das die typologische Sonderform im Innenund Außenraum gestalterisch abbildet. Als Hauptträger dienen Stahlbetonträger, die paarweise gespannt werden und als Auflager für die Tonnenschalen fungieren. So kann im Zwischenraum der Trägerpaare der Trennvorhang untergebracht werden. Die gesamte Dachkonstruktion im Innenraum ist als maßgebliches Gestaltungselement rot gefärbt. 

Die Außenwände im Sporthallenteil erhalten eine Vormauerschale aus Recyclingbacksteinen, farblich stimmig zur Putzfassade des Bestandsbaus sortiert. Analog zum Deckentragwerk überspannen die Fensteröffnungen flach gemauerte Segmentbögen, deren Schub jeweils ein Zugband mit Widerlagern als Stahlbetonfertigteil aufnimmt. Die Fassade des niedrigeren Gebäudeteils nimmt in Material und Farbigkeit die Putzstruktur des Bestandes auf. Ein großzügiges horizontales Fensterband unterstreicht die Öffentlichkeit zum Straßenraum.

Schulz und Schulz Architekten 

Ort
Berlin, Deutschland
Bauherr
Land Berlin, Bezirksamt Lichtenberg von Berlin
Architektenprofil
Grundstückfläche
3.670 m²
Bebaute Fläche
2.000 m²
Nutzungsfläche
1.400 m²
Brutto-Rauminhalt
14.800 m³
Bauzeit
2018 – 2020
Baukosten
4,55 Mio. €