Ausbildungszentrum mit Forstfarm und Herberge in Buhweju (Uganda)

Rosa Modersohn und Anna Wimberger

Ausbildungszentrum mit Forstfarm und Herberge in Buhweju (Uganda)

GEMAUERTE ZUKUNFT

In den Hügeln der Region Buhweju in Uganda wurde ein Ausbildungszentrum inklusive Herberge für Handwerk und Tourismus sowie für land- und forstwirtschaftliche Tätigkeiten geschaffen. Es bietet Waisenkindern sichere Ausbildungsplätze und unterstützt sie, eigenständig in die Zukunft zu starten. Ziel ist zudem, die abgeholzten Regenwaldflächen mit heimischen Baumarten wieder aufzuforsten und die ländliche Region zu stärken.

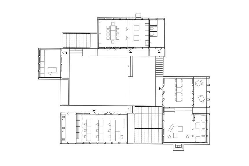
Das Entwurfskonzept von Anna Wimberger und Rosa Modersohn wurde im Rahmen eines Design-Build-Projektes aufgrund der Modularität und möglichen Anpassung an die Topografie ausgewählt und ist unter der Leitung von Prof. Victoria von Gaudecker und der Bauherrenschaft der Hilfsorganisation Kids of Africa entstanden. Die Weiterentwicklung und der Bau des Projektes wurden von etwa 80 Studierenden der TU München, der Hochschule München, der Hochschule Augsburg sowie der Uganda Martyrs University unter dem Motto „build together – learn together“ realisiert und dabei von lokalen Handwerkern unterstützt. Der Entwurf berücksichtigt lokale Bauweisen und ökologische Materialien. Drei Gebäudecluster bilden kleine Dorfgemeinschaften, definieren Außen-, Zwischen- und Innenräume. Das Ensemble ermöglicht in den Wohn- und Lernbereichen Privatsphäre und gemeinschaftliche Flächen am zentralen Platz. 

Das Ensemble wird energieautark betrieben: Regenwasser wird gesammelt, Photovoltaik und Solarthermie liefern Strom und warmes Wasser, eine Heizung ist nicht erforderlich. 

Ort
Buhweju, Uganda
Bauherr
Kids of Africa
Architekt
Rosa Modersohn und Anna Wimberger sowie Studierende der TU München, TH Augsburg und Uganda Martyrs University unter Leitung von Prof. Victoria von Gaudecker
Grundstückfläche
10.000 m²
Bebaute Fläche
648 m²
Nutzungsfläche
240 m²
Brutto-Rauminhalt
1.085 m²
Bauzeit
2018 – 2022
Baukosten
120.000 €