Center for Culture and Arts of the Lakeside
ATELIER ARS
Manifestierte Mystik
Es ist ein besonderer Ort, an dem ATELIER ARS das Projekt Center for Culture and Arts of the Lakeside realisiert hat. Es befindet sich am Ufer des Chapalasees, des größten Sees in Mexiko. Der Chapalasee ist seit Jahrhunderten ein heiliger Ort für die indigene Wixárika- Kultur, deren Mythen eng mit der vulkanischen Genese des Gewässers verbunden sind. Diese Erzählungen dienten dem Büro als Inspiration für die Gestaltung des Zentrums. Das Gebäude selbst soll so einen Teil der Kulturgeschichte des Ortes vermitteln.

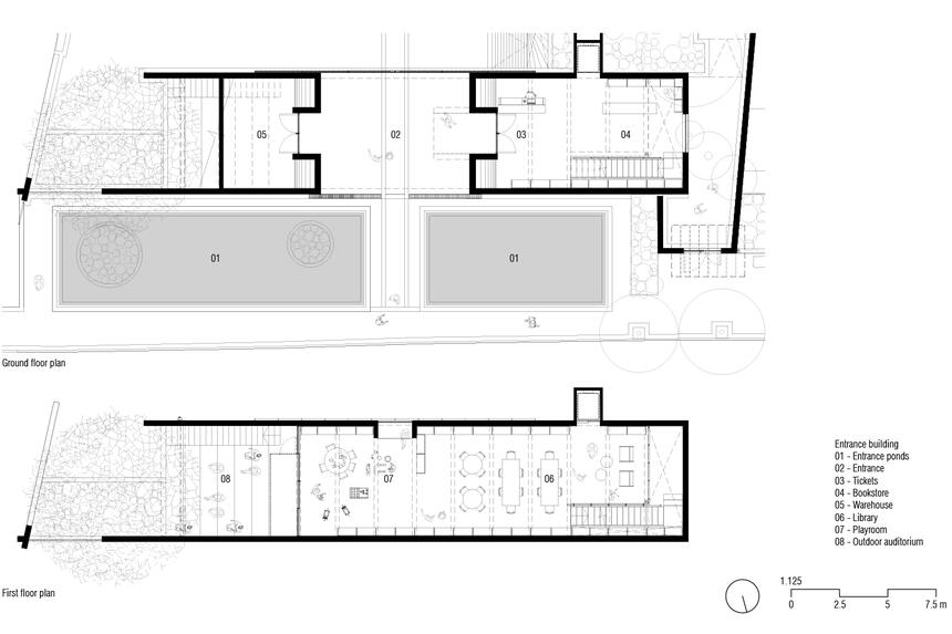
Die Architektur erzählt eine Landschaftsnarration in drei Akten: Das erste Element ist das Wasserbecken, das sich entlang der gesamten Fassade der Bibliothek erstreckt. Darin liegen zwei mit heimischen Arten bepflanzte Inseln als Metapher für den See. Ein zweites Becken mit einem Wasserstrudel symbolisiert die mythische Entstehung des Chapalasees: Ein Schamane stach einst einen magischen Stab in das überflutete Land, woraufhin sich der Wasserspiegel senkte und der See sowie bewohnbares Land entstanden. Schließlich verweist ein Amate-Baum auf die „Isla de los Alacranes“, den wichtigsten heiligen Ort der Wixárika-Kultur. Die Legende erzählt von einem Schamanen, der seinen Stab in den Stein stieß, woraufhin ein Amate-Baum entsprang, um einen heiligen Altar zu begründen.
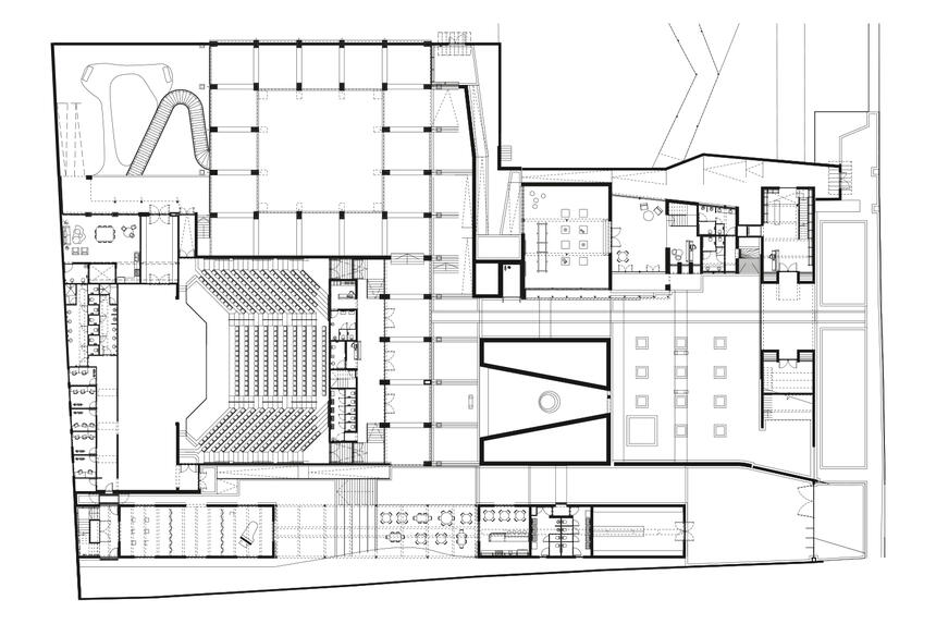
Der Baum wurde inmitten eines bestehenden Backsteingewölbes gepflanzt, das die Architekten als Ausgangspunkt für das Projekt nahmen. Neben dem Auditorium mit seinem Säulengang gehörten auch und weitere Strukturen wie ein Bürogebäude zu den Bestandsgebäuden, die, obwohl keiner von ihnen einen denkmalpflegerischen Wert hatte, instandgesetzt und in den neuen Komplex integriert wurden. Der Einsatz traditioneller Tonbauelemente aus der Region in unterschiedlichen Formaten und Bausystemen erzeugen ein Gefühl von Einheit und drücken Wertschätzung für das handwerkliche Wissen der Region aus. Auf dieser Grundlage wurde der Komplex um drei wesentliche neue Elemente ergänzt: eine Bibliothek als repräsentative Fassade, ein langgestrecktes Servicegebäude mit Tanz- und Musikräumen sowie ein großes Wasserbecken im Zentrum. Durch den bewussten Einsatz von Backstein als traditionellem Material entsteht eine einheitliche architektonische Sprache, die die Verbindung von Alt und Neu sichtbar macht. Wasserbecken, Inseln und der Hügel mit dem heiligen Amate-Baum übersetzen die Mythen der Region in räumliche Erfahrungen. Das Zentrum für Kultur und Kunst bietet so nicht nur Raum für Musik, Tanz, Ausstellungen und Begegnungen, sondern lässt zugleich die Verbindung von Natur, Mythos und Gemeinschaft werden.