Amant

SO–IL

Amant

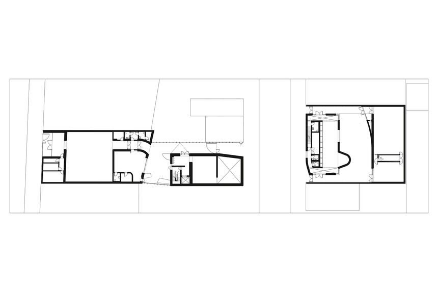
EINLADENDE  DURCHLÄSSIGKEIT

Der Kunstcampus Amant bildet in der schnelllebigen Stadtumgebung Brooklyns einen einladenden Ruhepol. Er erstreckt sich über drei Häuserblocks im industriellen Nord-Brooklyn und fungiert mit Künstlerateliers, Galerien, Büros, Lagerräumen und einem Café als kultureller Inkubator. 

Die einzelnen Volumen fügen sich in das städtische Gefüge ein, der Mini-Campus ist Teil der lokalen Gemeinschaft. Außenbereiche, Eingänge und neu geschaffene Durchgänge verbinden öffentliche und private Räume und machen die zentralen Funktionen für die Besucherinnen und Besucher zugänglich. Der spielerische Umgang mit Backstein und Beton verleiht den Gebäuden vertraute Charakterzüge. Jedes der vier Volumen bietet eine in Proportion, Lichtqualität und Infrastruktur einzigartige Galerie. Der Campus ist flexibel geeignet für Gruppenausstellungen und individuelle Programme sowie für technisch anspruchsvolle Installationen. Materialien wie Schalungsplatten, Backstein und verzinkte Stahlstäbe erzeugen Schatten, Reflexionen und Taktilität, fügen sich in den industriellen Kontext ein und vermitteln gleichzeitig Vertrautheit und Alltäglichkeit. 

Ort
New York (Brooklyn), USA
Bauherr
Lonti Ebers
Architektenprofil
Grundstückfläche
1.950 m²
Bebaute Fläche
1.532 m²
Nutzungsfläche
1.950 m²
Bauzeit
2016–2021