Cinéma le Grand Palais

antonio virga architecte

Cinéma le Grand Palais

Rückkehr zur verlorenen Urbanität

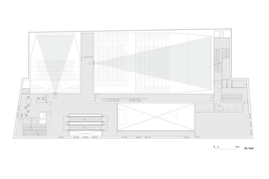
Ein Gebäude mit zeitloser architektonischer Ausdruckskraft. Ein Kino mit sieben Sälen und einer Kapazität von 1.051 Personen mit einem unabhängigen Museumsbereich, integriert in einen Masterplan für einen Fußgängerplatz im Zentrum von Cahors. Das Kino nimmt den Standort des Ostflügels eines ehemaligen Militärkomplexes ein, der 1943 niederbrannte. Die Fassaden und Dächer des Kinos sind am Hauptvolumen vollständig mit Backstein bzw. am angrenzende Volumen mit Metall verkleidet.

„Le Grand Palais“ befindet sich auf der Nordseite des historischen Zentrums der Stadt Cahors, nur wenige Schritte von den Ufern des Flusses Lot entfernt. Die älteren Gebäude, die das Kino umgeben, bildeten einst ein Ensemble, das zunächst als Kloster und später als Militärstandort diente. Das Kino nimmt den Platz des Ostflügels des Komplexes ein, der 1943 niederbrannte. In den letzten Jahren wurde der Zwischenraum zwischen den Gebäuden, der nur unzureichend definiert war, als Parkplatz genutzt. Mit dem neuen Baukörper, dem Kino, und unter Einbeziehung aller vorhandenen Elemente wie Gebäude, Bäume und weiterer Strukturen bestand die Grundlage unseres Projekts darin, die verlorene Urbanität des Ortes wiederzufinden, die er einst besaß oder hätte besitzen können.

Die Gebäude und die angrenzenden Außenräume waren nach einem strengen Layout organisiert, entsprechend den Entwurfsprinzipien des 19. Jahrhunderts für militärische und öffentliche Anlagen. Um den Maßstab des Ensembles angemessen wiederherzustellen, wurde die Gruppe der Räume durch eine kohärente Auswahl von Materialien, Möblierung und Bepflanzung mit großer Einfachheit behandelt. Wichtig war eine zeitlose architektonische Ausdrucksweise, sodass das Neue nicht einfach als Fremdkörper im Alten erscheint, sondern sich stark mit dem Bestehenden verbindet, als wäre es schon lange Teil davon (unter Vermeidung von Pastiche oder künstlicher Alterung).

Das Ziegelvolumen „kopiert“ die Baukörper der bestehenden Gebäude am Platz. Wir wollten ein Material verwenden, das sich gut in die Materialien und Farben des alten Cahors einfügt. Backstein ist in der traditionellen Architektur von Cahors weit verbreitet – sichtbar etwa an den Fassaden der nahegelegenen Kirche Saint Barthelemy Church – und fungiert somit als verbindendes Element zwischen der neuen Architektur des Kinos und der Altstadt. Außerdem wählten wir eine Farbe, die an den Naturstein von Cahors erinnert: etwas Neues, das das Alte hervorhebt. Gleichzeitig wollten wir dieses traditionelle Material auf eine innovative und überraschende Weise einsetzen: Das Gebäude wurde als nahezu fensterloses Volumen entworfen, einschließlich des Daches vollständig mit Backstein verkleidet.

Da das Raumprogramm, ein Kino mit sieben Sälen, größer war als die innerhalb des Gebäudes verfügbare Fläche, musste es erweitert werden. Um die durch die Bezugnahme auf die Bestandsgebäude entstandene Symmetrie nicht zu verlieren, entschieden wir uns für eine „scheinbare“ Erweiterung: einen zweiten Baukörper aus goldfarbenem Metall, ein Material, das sich wiederum gut in die Farbwelt von Cahors einfügt. Diese sogenannte Erweiterung ist ein vollständig neuer Bau, auffälliger, aber zugleich auch stärker zurückgenommen.

Es handelt sich um ein Projekt, das mit Masse und Leichtigkeit spielt. Diese Idee zeigt sich auch in den Fassaden mit ihren Mashrabiyas, die tagsüber Licht aufnehmen und nachts abstrahlen, wodurch das Gebäude leichter wirkt. Ziel war es, ein Gebäude mit historischem, klassischem und zugleich zeitgenössischem Anspruch zu entwerfen, ohne dabei jemals zu direkt oder offensichtlich zu sein. Seine Architektur bezieht sich auf das alte Cahors, auf die Geschichte des Platzes und auch auf das verlorene Konzept der historischen monumentalen Kinos.


 antonio virga architecte

Ort
Cahors, Frankreich
Bauherr
Mairie de Cahors & Société Cadurcienne d’Exploitation Cinématographique
Architektenprofil
Grundstückfläche
9.400 m²
Bebaute Fläche
1.640 m²
Nutzungsfläche
3.252 m²
Bauzeit
2018 – 2019
Baukosten
6,4 Mio. €