Sands End Arts & Community Centre

Sands End Arts & Community Centre

Historisches Materialspiel

Das Sands End Arts and Community Centre von Mæ bietet den lokalen Gemeinschaften dringend benötigte, anpassungsfähige Sozial- und Freizeiträume.

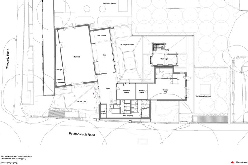
Das neue Zentrum umfasst die Sanierung der Clancarty Lodge aus dem frühen 20. Jahrhundert – einem lokalen Wahrzeichen – und ergänzt sie durch eine Reihe niedriggeschossiger CLT-Pavillons aus Brettsperrholz. Das ambitionierte Briefing des Bezirks Hammersmith & Fulham zielte auf wertvolle Angebote ab, die die soziale Integration in der Nachbarschaft fördern. Mæ erfüllte diese Ziele mit einem Gebäude, das ein flexibles Raumprogramm in eine hoch nachhaltige Gebäudehülle integriert.

Die Clancarty Lodge markiert den Eingang zum Park und zeichnet sich durch außenliegende Details aus Holz-Faïence sowie ein Dach aus, das typisch für Londoner Parkbauten dieser Zeit ist. Mit Blick auf den Denkmal- und Bestandsschutz behielt Mæ das Gebäude, renovierte und reparierte es und schuf darin neue Kunsträume. Community-basiertes Feedback prägte die Ausrichtung des Projekts maßgeblich und führte zur Ergänzung einer hölzernen Mezzanine-Ebene in der Lodge, die zusätzlichen Arbeitsraum und einen doppelgeschossigen Ausstellungsbereich schafft. Um die Zugänglichkeit für unterschiedliche Mobilitätsbedürfnisse zu verbessern, führte Mæ zudem einen stufenlosen Zugang in das Bestandsgebäude ein – zuvor war der Eintritt nur über Treppen möglich.

Die Neubauten sind so konzipiert, dass sie sich um die bestehende Lodge herum einfügen und sie rahmen. Eine Abfolge öffentlicher und landschaftlich gestalteter Bereiche verknüpft Neu- und Bestandsstrukturen und führt Besucher auf einem Weg von der Straße bis zur Parklage des Zentrums.

Inspiriert von den Gewächshäusern, die sich historisch auf dem Gelände befanden, ermöglicht der Einsatz einer CO₂-armen, verantwortungsvoll beschafften CLT-Konstruktion in den Pavillons ein hohes, einseitig geneigtes Dach und nahtlose, offene Grundrisse. Die entstehenden Räume beherbergen vielfältige Gemeinschaftseinrichtungen, darunter eine eigene Kita, ein Café und Veranstaltungsräume. Sie sind auf einer Ebene angeordnet, für alle zugänglich und lassen sich leicht für andere Nutzungen umkonfigurieren.

Die Innenräume profitieren von gleichmäßigem Tageslicht über großformatige, nach Norden ausgerichtete Oberlichtverglasungen, das die sichtbare Holzdachkonstruktion ausleuchtet und ein natürliches Gefühl von Großzügigkeit und haptischer Qualität erzeugt. Schiebetüren aus Glas öffnen sich zum Innenhof der Lodge, wo Außensitzplätze Raum bieten, das umgebende soziale Leben zu beobachten. Neue Bepflanzung, grüne Wände und Wildtierhabitate erhöhen zudem die Biodiversität.

Äußerlich hat der Erhalt der Lodge dazu beigetragen, das historische, charaktervolle Materialspiel der Umgebung zu bewahren und die Beziehung des Zentrums zu den benachbarten, rottonigen Gebäuden an der New King’s Road zu stärken. Passend dazu wird das neue, vorpatinierte Kupferdach des Zentrums mit einem innovativen Backsteintyp kombiniert, der zu 60 % aus Deponiematerial besteht und eine subtile, sandig-nougatfarbene Oberfläche aufweist. Insgesamt bestehen im gesamten Projekt über 35 % der Baumaterialien aus recycelten Materialien. Um Budgetgrenzen einzuhalten, senkte Mæ die Kosten und sparte 27.000 £, indem die Backsteine auf der Seite liegend vermauert wurden – so entstand ein Fassadenmuster, das zugleich eigenständig und harmonisch zum Gebäude passt.

City
London
Client
Hammersmith and Fulham Council
Architect profile
Plot size
3.080 m²
Built-up area
760
Usable area
633
Construction time
2020–2021